反擊式破碎機原理及性能優勢介紹
反擊式破碎機主要采用板錘撞擊石料而破碎的原理,具有結構設計簡單、配件、使用時間長、成品料粒型呈立方體、破碎流程少、設備投入少、能源消耗低等性能優勢。詳細解答
詳細解答
由于近些年家不斷提倡節能、環保,很多生產破碎機的廠家也在加強節能環保機械研發力度,顎式破碎機、圓錐破碎機、錘式破碎機、反擊式破碎機都是常見的破碎機設備,這些機械各有所長,中譽鼎力主要來講解下反擊式破碎機的原理及性能優勢有哪些。

反擊式破碎機簡介
反擊式破碎機應用于抗壓受力性能小于250MPa的各種礦石破碎,即使在破碎比較堅硬的石頭時,其件的損耗也較低,因其進料口通常在500mm以下,主要用于中碎和細碎整形。主要用于冶金、化工、建材、水電等行業,適合為高速公路、鐵路等高等道路提供上乘的砂石骨料。

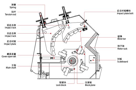
反擊式破碎機原理
反擊式破碎機(反擊破)利用高速運動轉子上的板錘,對送入破碎腔內的物料產生高速沖擊而破碎,且使已破碎的物料沿切線方向以高速拋向破碎腔另一端的反擊板,再次被破碎,然后又從反擊板反彈到板錘,在此過程中,物料間還會互相撞擊。由于物料受到板錘的打擊、與反擊板的沖擊以及物料相互之間的碰撞,物料不斷產生裂縫,松散而致粉碎。當物料粒度小于反擊板與板錘之間的縫隙時,被排出機外。

反擊式破碎機性能優勢
1、結構設計簡單,除了板錘和襯板外,幾乎沒有其他易損零件,機械修護簡單、成本。
2、采用鍵錐套聯接的轉子體、的板錘、齒形反擊襯板等,提高設備使用壽命。
3、擁有渦旋粉碎腔和三段破碎區,成品料形狀呈立方體,簡化破碎流程,減少設備投入。
4、反擊式破碎機在保障生產能力的同時,減少了能源的消耗,縮小了對環境的污染。

















